Greek Event Space Rentals

Event Spaces

Greek Venue Rentals

Our hall rental in Victoria BC has multiple rooms available for rent 7 days a week. Whether you’re looking for something smaller for a community event or work luncheon, or something more suited for a large wedding, our venues will have you covered.

We also offer catering services for events booked at our venue.

250 Capacity

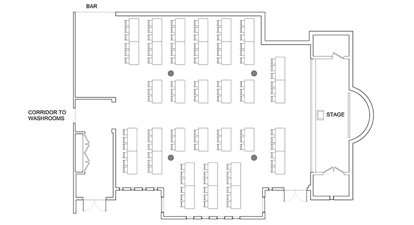
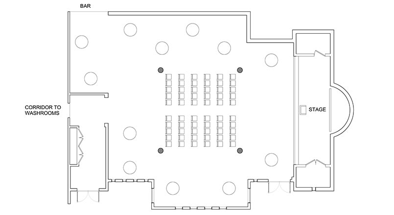
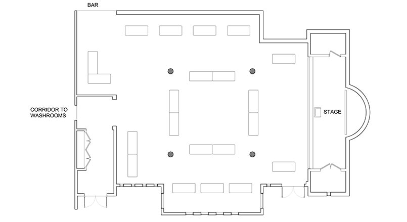
Grand Hall

The Grand Hall is designed for higher capacity gatherings such as weddings, conferences and fairs.

Wedding Receptions, Trade Shows, Fairs, Bar Mitzvahs, Prom, Christenings, Event Promotion

 

Amenities include:

  • Wi-Fi
  • Sound System – 2 x 1000 Watt Speakers
  • PA System – Microphone & Lavalier Clip
  • Cushioned Chairs & Tables
  • Large Projector
  • Screen
  • Bar

    Bar comes with:

    • Mobile Beer Keg Cooler & Dispenser
    • Cash Register
    • Double Bowl Commercial Sink
    • Dual Under-Counter Refrigerator

    Grand Hall

    FAQ

    What kinds of events are hosted here?

    Events such as weddings, trade shows, fairs, and Bar Mitzvahs are perfect events for this event hall.

    50 Capacity

    Auxillary Hall

    The Modest Hall is designed for lower capacity gatherings such as community events and meetings.

    Community Events & Meetings

     

    Amenities include:

    • Wi-Fi
    • Stereo System
    • Chairs & Tables
    • Washroom

        Grand Hall

        FAQ

        What kinds of events are hosted here?

        Events such as weddings, trade shows, fairs, and Bar Mitzvahs are perfect events for this event hall.

        Delicious Ingredients

        Professional Catering

        Whatever your catering needs we have you covered. Our professional chefs work with only the freshest ingredients ensuring the highest level of quality. We also offer diverse culinary choices to fit your taste. On-site catering or bring your own.

        Let us create a menu that will meet all your expectations and then some.

        Event Rental Form

        Venue Rental

        Interested in booking your event with us? Fill out our booking form and we’ll get back to you as soon as we can.